Zum Hauptinhalt springen Zur Suche springen Zur Hauptnavigation springen

Ausstellungsküche Next125 NX510 / NX620

Produktinformationen "Ausstellungsküche Next125 NX510 / NX620"

Elegante Insel-Küche mit modernem Kontrast Schwarz und Weiß.

  • Hersteller: Next 125.
  • Programm: NX510 / NX620.
  • Frontfarbe: Alpinweiß samtmatt-Lack / Tanne schwarz gebürstet.
  • Arbeitsplatte: Fenix Alpinweiß.
  • Spüle / Armatur: Blanco Axia III 6S-F / Blanco Linus-S.

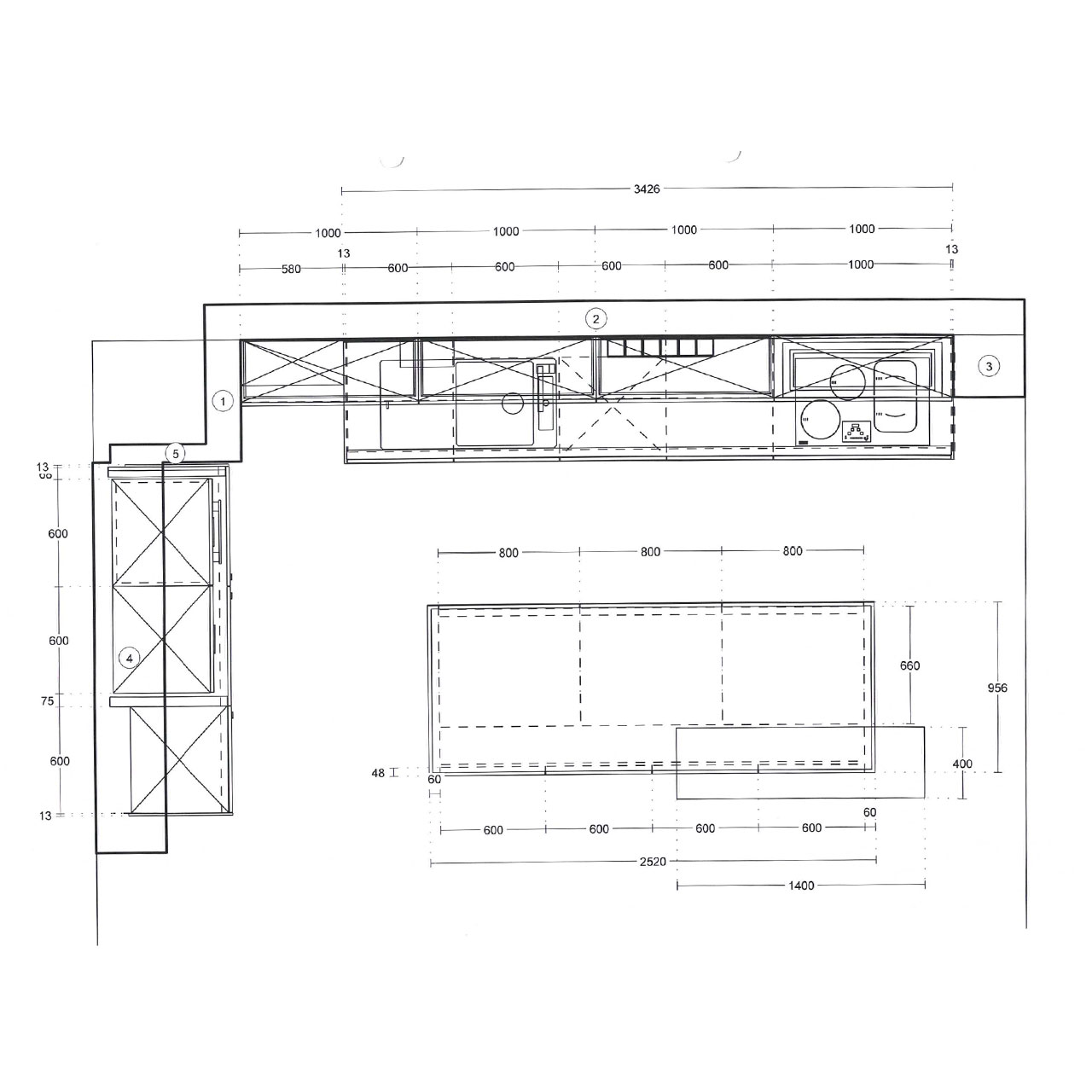
Maße entnehmen Sie bitte den Bildern!

Produktbeschreibung:

  • Einbauküche von Next125 in modernem Stil mit Fronten aus den Programmen NX510 und NX620 in den Farben Alpinweiß Samtmatt-Lack und Tanne schwarz-gebürstet.
  • Das klassische Farbkonzept schafft eine elegante Atmosphäre. 
  • Besondere Eigenschaften dieser Küche sind die dünne und hochwertige Arbeitsplatte aus dem Material Fenix, die beleuchtete Nischenrückwand mit Paneelsystem sowie die Hochschränke mit Einschubtüren.
  • Verbaut sind eine Spüle und Armatur der Marke Blanco.
  • Die Elektrogeräte sind nicht im Preis enthalten. Wir unterbreiten Ihnen gerne ein Angebot für die passenden Elektrogeräte.

Farben können auf verschiedenen Bildschirmen abweichen. Deko oder andere Beimöbel sind nicht enthalten. Abbildung kann abweichen.

Bitte beachten: Der Artikel ist oder war in unserer Ausstellung aufgebaut. Bitte fragen Sie telefonisch nach, ob eine Besichtigung derzeit möglich ist. Der Sonderpreis bezieht sich auf unser Ausstellungsstück. Die Ware ist Originalware. Sie erhalten keinen Retourenartikel oder zweite Wahl Artikel. Bitte beachten Sie, dass es sich bei Ausstellungsstücken um Artikel handelt, die optische Mängel haben können (in diesem Fall wird der Mangel per Foto dargestellt) und nicht mehr original verpackt sind. Hierbei könnte es zu transportbedingten Beschädigungen kommen. In diesen Fällen können wir die Ware leider nur zurücknehmen und nicht austauschen. Der Verkauf erfolgt unter Ausschluss jeglicher Sach­mangelhaftung. Die Haftung wegen Arglist und Vorsatz sowie auf Schaden­ersatz wegen Körperverletzungen sowie bei grober Fahr­lässig­keit oder Vorsatz bleibt unbe­rührt.

Ausstellungsküche Next125 NX510 / NX620

Angaben zur Produktsicherheit:

Hersteller:
Schüller Möbelwerk KG
Rother Straße 1
91567 Herrieden
Deutschland

E-Mail:
info@next125.com

Montageanleitungen,Typenlisten, Materialübersichten und Produkt-Sicherheits-Hinweise stellen wir Ihnen auf Wunsch gerne zur Verfügung. Einfach anfragen unter https://www.heidenreichs-kuechenwelt.de/Shopservice/Kontakt/